
2:1
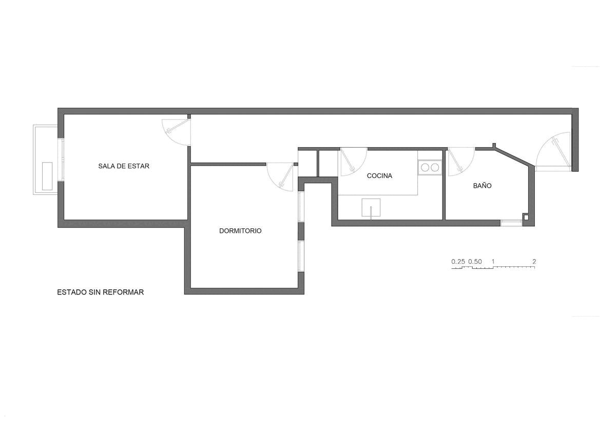
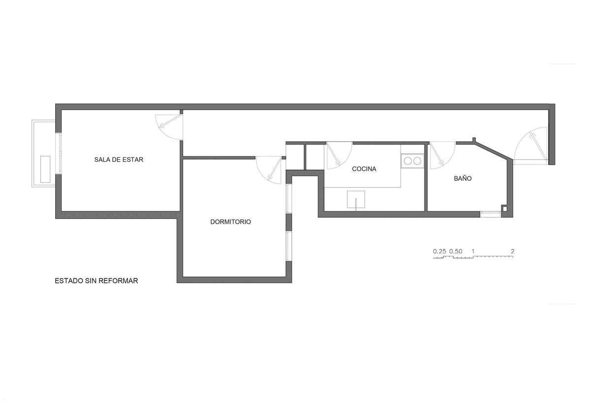
A one-bedroom apartment might appear to be a project with modest aspirations. However, considering it’s a space just over three meters wide and twelve meters deep, with a single window on the short side, it’s not such a simple task.
This project was born from the owners’ desire to have a “day zone” that was spacious and open, allowing them to have short, comfortable stays in a 36m² apartment, when they were accustomed to living in more than 150m².
The design of a foldable piece of furniture that contains a double bed, bedside tables, and a wardrobe for hanging clothes, combined with another piece of furniture twelve meters long that runs the entire length of the apartment, made this possible.
The opening and closing of the bed allow for two domestic configurations: “night mode” and “day mode.” Each one excludes the other, but the one in use is fully developed: spatial openness, light, ventilation, and functionality.
The result is a long, narrow tubular home that expands to the left to form the bathroom, kitchen, and bedroom, while to the right, a twelve-meter-long piece of furniture allows for nearly everything to be stored.
2:1 could be defined as an ultra-functional urban micro-apartment that creates “generous” spaces to live, work, sleep, dress, and meet with friends, all within a 36m² space, with the only caveat being that not all functions can be performed at the same time.
Two essential premises guide this type of project: the first and most important: having the complicity of the client. Although this domestic typology doesn’t forgo basic standards of comfort and habitability, in many cases, it represents a lifestyle that avoids traditional patterns and redefines needs. The second premise is to discern and simplify the client’s programmatic priorities, which in these cases significantly shape the compact design of the spaces.
Location: Poble Sec, Barcelona
Typology: integral renovation of a house without structural alteration.
Status: completed (2018)
Area: 36m2
Photography: Valentín Hincû






