
DOCTOR TRUETA
Restoration and Space Reconfiguration
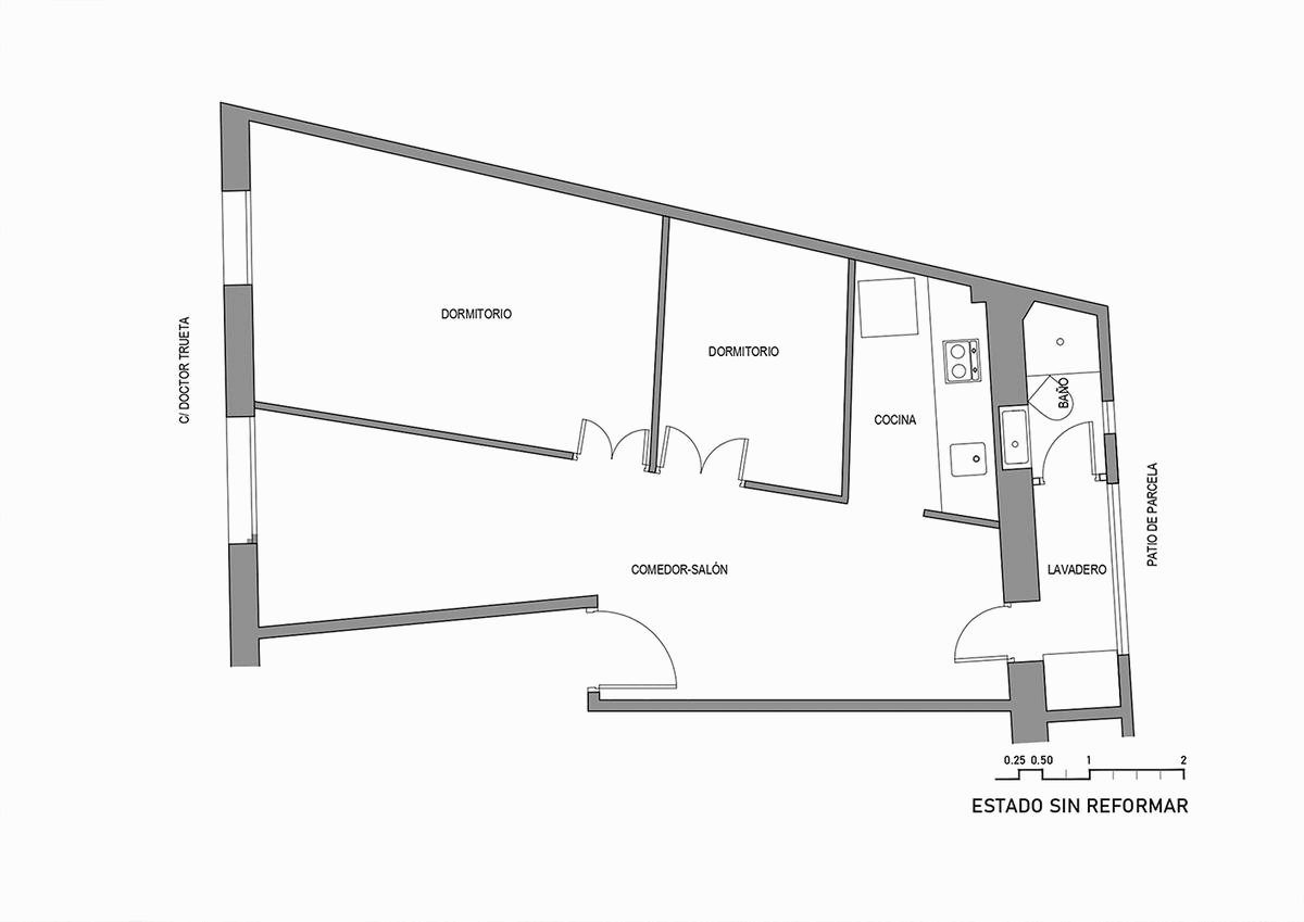
In DOCTOR TRUETA, we encountered an early 20th-century apartment with a very poor layout: The living room was no more than two meters wide, which confined its inhabitants to a somewhat claustrophobic space where “social life” could scarcely be developed.
The kitchen and bathroom were barely habitable due to their small size and lack of proper equipment.
Improvised electrical installations caused high electromagnetic contamination, while inefficient joinery allowed the thermal inertia of the walls to be lost through the openings.
The spatial reconfiguration required structural reinforcement to safely demolish the dividing walls without risking the integrity of the upper floors, as these walls, after so many years, had become integrated into the building’s structural function, bearing weight.
Project Strategy
The project’s strategy focused on creating an open-plan space in the front half of the apartment, oriented toward the façade. By demolishing the partitions, the “social” area now spans the entire width of the apartment, facing the street and with a southern orientation.
In the rear half, we placed the bedroom and kitchen. Both areas are ventilated through the gallery of the back façade, which was reconfigured and transformed into a bathroom and laundry area, solved in three independent spaces.
Exposing Historical Elements
Beneath many layers of paint and plaster, we uncovered stone walls worthy of display. Above false plaster ceilings, the wooden beam and brick vault structure also begged to be revealed.
By leaving these materials exposed, they express the age and history of the apartment, the building, and the typical industrial constructions of the neighborhood. This patina of wear adds to the space an experience of time. The ambient lighting design accentuates their beauty.
Materials and Design
The other materials chosen for the project are subtle and minimal, meant to engage in dialogue with the essential beauty of the pre-existing elements, in an act of gratitude and harmony.
Location: Poble Nou, Barcelona
Typology: residential
Status: completed (2022)
Activities: project, project management and construction management.
Area: 50m2
Photography: Valentín Hincû













