
VINNYTSIA
Reconstruction, Expansion, Landscaping, Interior Design of a Detached Single-Family Home.
At the end of 2019, a project arrived at our office that posed a significant challenge: rethinking a 1,500 m2 detached home that, although recently built, employed construction methods reminiscent of early 20th-century techniques.
Located in the southeast of Ukraine, near Vinnytsia, and surrounded by forests and rivers, we inherited an unfinished structure, with a configuration and appearance far removed from contemporary Western standards.
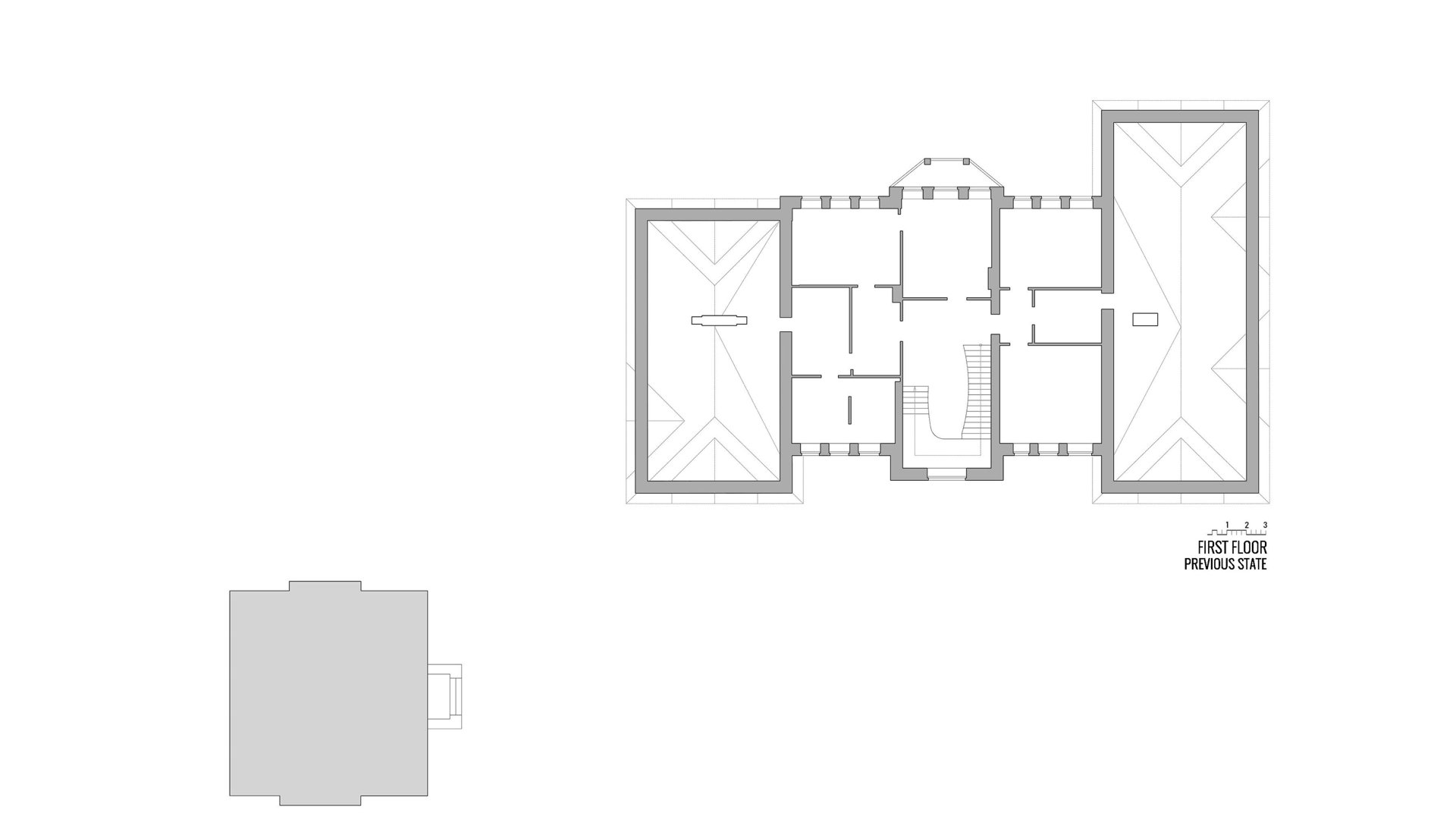
We respected the inherited structure, which can be summarized in five modules of load-bearing walls. We opened all of them to the interior of the plot and to the street, enhancing cross-ventilation, improving the views, and dematerializing its tectonic character.
Functionally, the house gains in privacy as you ascend the stairs.
The semi-basement houses the service areas, storage rooms, utility rooms, game room, music room, sauna, gym, indoor pool, and wine cellar.
On the first floor are the kitchens, dining room, meeting areas and guest room. While on the second floor are the library and all the bedrooms of the family members.
On the ground floor, the kitchens, dining room, meeting areas, and guest room are located. The first floor is home to the library and all the bedrooms for the family members.
A barbecue area, outdoor cinema, and chill-out zone are located almost at the center of the garden, enjoying views of the river and the surrounding landscape. The positioning avoids the shadows of the main building, allowing for extended time by the pool during the summer months.
The proposal is completed with a landscaping project, designed with a focus on a sustainable, low-maintenance garden, lighting, and the importance of the nocturnal effect. It also emphasizes lightness through textures and decorative elements, as well as the use of natural materials.
The Russian attack at the beginning of 2022 put the project on hold.
In the meantime, we leave behind images that define the project in all its magnitude, images that, much like the Ukrainian citizens, we hope will one day signal the end of this war.
Location: Ukraine
Typology: project and construction management
Year: 2019-2021
Area: 1.885m2 indoors y 9.685m2 outdoors
Landscaping: Drim
Display: 3dkuviqa











