
2:1
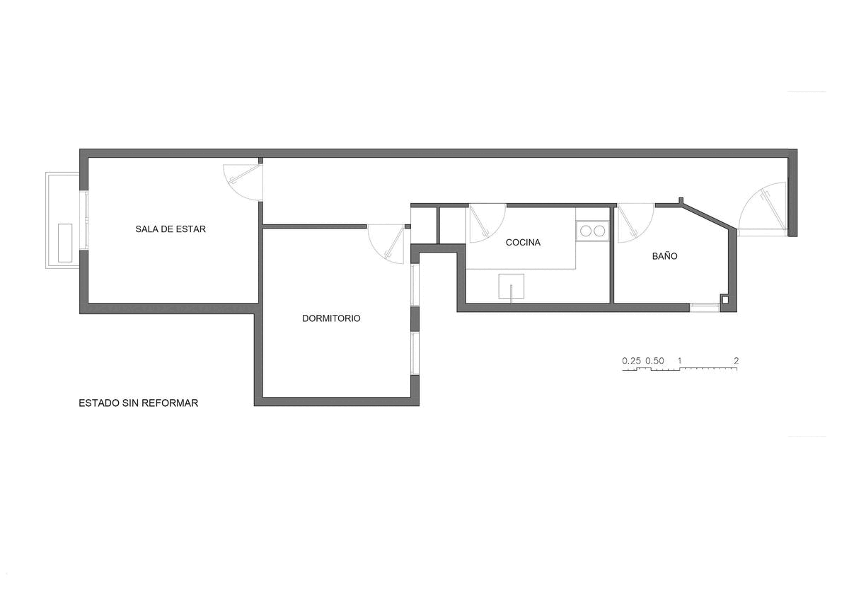
Un apartamento de un dormitorio es, en apariencia un proyecto con pretensiones modestas. Pero tratándose de un piso de poco más de tres metros de ancho y doce metros de profundidad, con una única ventana en su lado corto, no es tarea tan sencilla.
Este proyecto nace de la voluntad de sus propietarios de tener una «zona de día» amplia y abierta, que les permitiera tener estancias cortas y confortables, en un piso de 36m2, cuando estaban acostumbrados a vivir en más de 150m2.
El diseño de un mueble abatible, contenedor de la cama de dos plazas, las mesitas de noche y el armario para la ropa colgada, sumado a otro mueble de 12 metros de longitud que recorre todo el largo del apartamento, lo hicieron posible.
La apertura y cierre de la cama, permite generar dos configuraciones domésticas: «modo noche» y «modo día». Cada una de ellas excluye la otra, pero la que habilita, se desarrolla en todo su esplendor: amplitud espacial, luz, ventilación y funcionalidad.
El resultado es una vivienda tubular, larga y estrecha que se expande hacia la izquierda para conformar baño, cocina y dormitorio, mientras hacia la derecha un mueble de 12 metros de longitud, permite guardarlo casi todo.
2:1 podría definirse como una microvivienda urbana ultra-funcional, que configura espacios «holgados» para vivir, trabajar, dormir, vestirse, reunirse con amigos, dentro de un espacio de 36 m2, con la única salvedad que no todas las funciones pueden desarrollarse al mismo tiempo.
Dos premisas esenciales marcan la hoja de ruta de este tipo de proyectos, la primera y la más importante: contar con la complicidad del cliente, porque, aunque esta tipología doméstica no renuncia a unos estándares básicos de confort y habitabilidad, en muchos casos supone un estilo de vida que rehúye los patrones habituales y relativiza las necesidades. La segunda premisa supone discernir y simplificar las prioridades programáticas del cliente, que en estos casos condicionan de forma especialmente significativa el ajustado diseño de los espacios.
Ubicación: Poble Sec, Barcelona
Reforma: Reforma integral de vivienda sin afectación estructural
Año: 2018
Superficie: 36m2
Fotografía: Valentín Hincû






