
LOOP
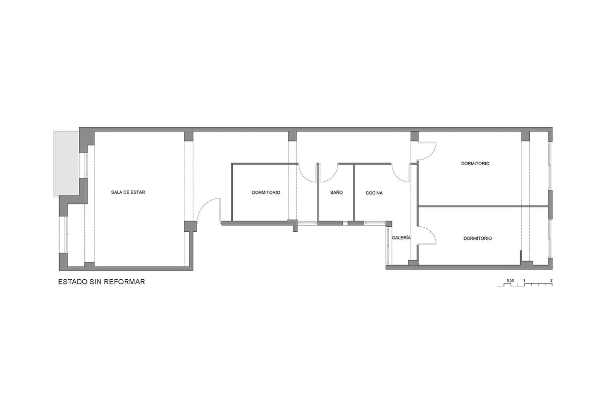
En un barrio valenciano que un día fue una pequeña aldea árabe, y que hoy se ha convertido en el epicentro hípster de la ciudad, -aunque a diferencia de Malasaña o Gràcia, aún destila aroma de barrio- encontramos una finca de los años 50’, donde nos tocó reinventar una pieza estándar de 80 m2.
Se trata del típico piso entre medianeras, abierto hacia la calle y al pulmón de manzana, de no más de 7 metros de ancho y de gran profundidad.
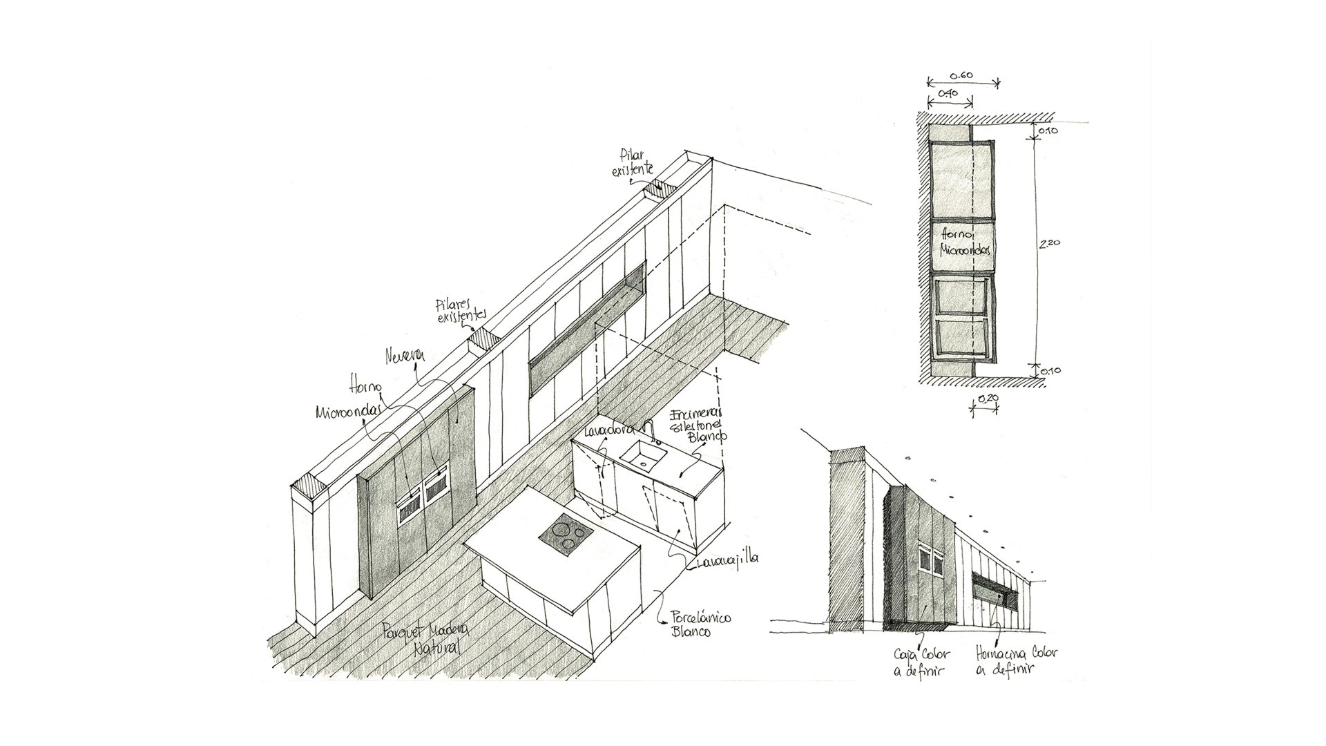
El proyecto nació a partir de la implantación de un mueble multifuncional, que recorre casi toda la profundidad del piso y transforma el interior de este apartamento en un espacio dinámico y de mayores prestaciones. Formado por paneles de madera lacados y mobiliario integrado, sus componentes fueron fabricados en La Rioja y ensamblados en la casa.
Desde el punto de vista del diseño, un plano continuo de puertas blancas (detrás de las que se esconden pilares y vigas estructurales) se ve interrumpido por una caja saliente verde menta que acoge mobiliario de cocina (nevera, horno, microondas, cajones para despensa) y una hornacina del mismo color, que “ensancha” y “acorta” el pasillo.
Su capacidad permite disponer de varias zonas de almacenamiento, sirviendo a los distintos ambientes que acompaña en su recorrido: recibidor, cocina, comedor, baños, y habitación infantil.
Funcionalmente, un gran espacio de día se abre al bullicio de la calle, mientras que los dos dormitorios se orientan hacia el gran pulmón de manzana, donde el sol naciente nos ofrece la posibilidad de prescindir del despertador.
Ubicación: Valencia
Reforma: Reforma integral de vivienda.
Año: 2020
Superficie: 80m2
Fotografía: Valentín Hincû












