
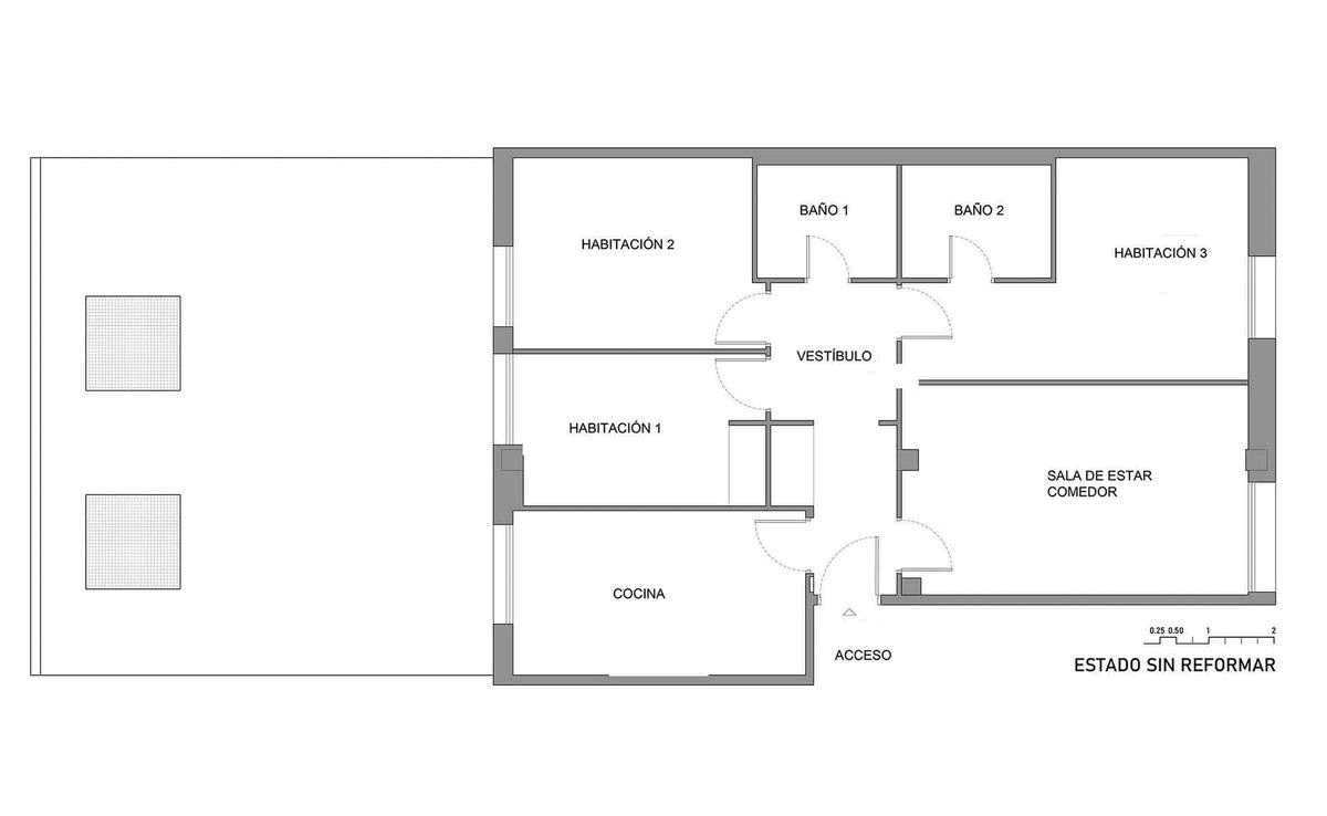
CASA MEQ
Al igual que Barcelona, que antes de las olimpíadas) vivía de espaldas al mar, casa MEQ contaba con una impresionante terraza de 50 m2 a la que ignoraba por completo: sólo dos ventanas pequeñas y una puerta angosta vinculaban interior y exterior.
Ya la primera visita, tuvimos claro que uno de los objetivos más importantes era conectar funcional, espacial y visualmente, la terraza y el interior.
La estructura familiar aceptaba que el piso tuviera sólo dos dormitorios, pero con la suficiente flexibilidad de un tercero, en previsión de la llegada de un nuevo integrante en un futuro no muy lejano.
Para conseguir la pretendida fluidez entre interior y exterior, era necesario un gran ventanal que no dejaba superficie de pared para instalar radiadores: por tanto, la solución de calefacción se resolvió con unos radiadores empotrados en el escalón del deck que pasan totalmente desapercibidos y forman una barrera perfecta contra el frío.
En la terraza, dos grandes claraboyas que iluminan el parking de planta baja, nos entorpecían la fluidez: un jardín elevado hasta la altura del sombrero de los lucernarios, disimula el defecto y crea un espacio diferenciador para relajarse y tomar el sol de la tarde.
El resto del proyecto gira en torno al color, la luz y la madera.
Ubicación: Barcelona
Reforma: Reforma integral de vivienda. Proyecto, dirección y gestión de obra.
Año: 2021
Superficie: 90m2 + terraza 50m2
Fotografía: Valentín Hincû















