
CASA YAD
Casa YAD se encuentra cerca de Barcelona, pero respira aire mas puro, oxigenado por la sierra de Collserola que la separa de la ciudad condal.
Al contrario de lo que uno imagina sobre las costumbres de una familia que habita una casa de 240 m2, los moradores de casa YAD, no tenían mucho «equipaje» que almacenar y allí reside la esencia del proyecto: LA SIMPLICIDAD y EL VACÍO resueltos con una DEPURADA SELECCIÓN DE MATERIALES.
El encargo de la reforma integral de Casa YAD, comisionado por una pareja asturiano-taiwanesa, llegó a nosotros después de un profundo proceso de reflexión por parte de sus propietarios, que tenían muy bien identificadas sus necesidades y prioridades.
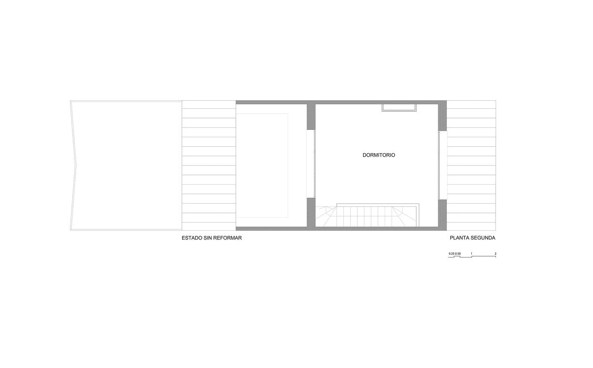
Sus habitantes no parecían exigirle a la casa más de lo que esta podía darnos. Con una excepción: ALTURA. La casa construida durante los 80′, no tenía más de 2,50m de alto. Los propietarios no querían bajar ni un centímetro, y esto obligó a diseñar las instalaciones casi como en un juego de sudoku.
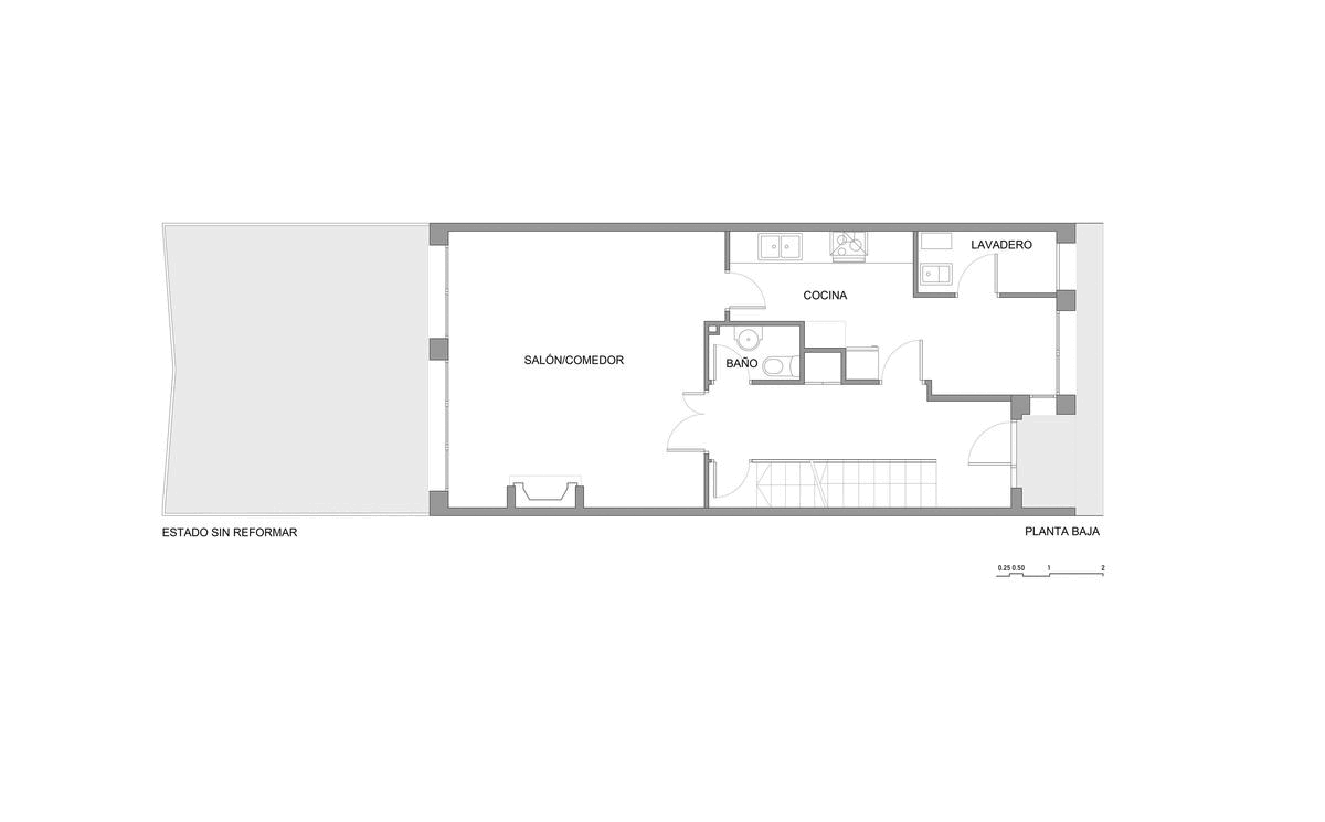
La planta baja, se abre toda ella al jardín trasero, haciendo más estrecha su relación con el exterior, gracias a una gran puerta ventana de más de 5 metros de ancho que va de medianera a medianera.
Los espacios de cocina, comedor y salón, son un continuo que se diferencia entre sí gracias a un selectivo cambio de materialidad en muebles y pavimentos.
Respetando ejes y simetrías que otorgaran armonía al conjunto, nos vimos obligados a encajar el aseo de cortesía en unos escasos 90 cm2… que incluso pintado todo él de gris oscuro, no nos expulsa de su recinto.
La planta primera, renuncia a uno de sus antiguos dormitorios, para dotar al dormitorio principal de un generoso cuarto de baño.
Una planta bohardilla, mantuvimos el techo de madera y una biblioteca heredada de los antiguos propietarios, y cambiamos el pavimento para conseguir un despacho apacible y relajado.
De lenguaje sencillo, materiales puros y líneas simples, casa YAD también tiene (sobre todo, tiene) espacios contemplativos, a pesar del ritmo ajetreado de sus habitantes.
Ubicación: Sant Cugat del Vallès
Reforma: Reforma integral de vivienda unifamiliar adosada, con afectación estructural.
Año: 2019
Superficie: 160 m2
Fotografía: Valentín Hincû





















