
VAL 13
En arquitectura, el término rehabilitar se entiende como el conjunto de técnicas e intervenciones aplicables a un edificio para su recuperación y reutilización. Pero más allá de la definición puramente académica, cuando hablamos de rehabilitación estamos hablando de respeto y responsabilidad. Respeto por una ciudad construida, que habla de su historia y refleja el esfuerzo de nuestros predecesores. Responsabilidad para con la herencia recibida y hacia las generaciones futuras. La rehabilitación se convierte pues en un instrumento para conservar la historia, preservar la memoria y proteger el paisaje que dibujó el parque edificado.
Rehabilitar un edificio es renovarlo, actualizarlo, adaptarlo a las funcionalidades presentes y futuras que, con toda seguridad, serán diferentes a aquellas para las que fue inicialmente diseñado, pero ofreciendo las mismas prestaciones a todos los niveles como si se tratara de un edificio nuevo.
En ese sentido, en rehabilitación, el proceso proyectual no parte de una idea: El punto de inicio es un edificio ya existente, que requiere de un análisis preciso, profundo y exhaustivo, para hacer un diagnóstico correcto, que nos permita proyectar con criterios de racionalidad constructiva, estructural e incluso desde su singularidad. definir y detallar sus características, incluso aquellas menos evidentes, su singularidad, que permitan proyectar en consecuencia su rehabilitación y dotarlo de otra vida útil para que siga prestando servicio a la sociedad con todas las garantías.
Toda actuación que se realiza en un edificio, esté o no catalogado como edificio de carácter patrimonial, se debe a la esencia propia del mismo y por ese motivo no debe ser transformado sin una reflexión profunda de las afectaciones, a todos los niveles, que esas intervenciones suponen en dicha construcción.
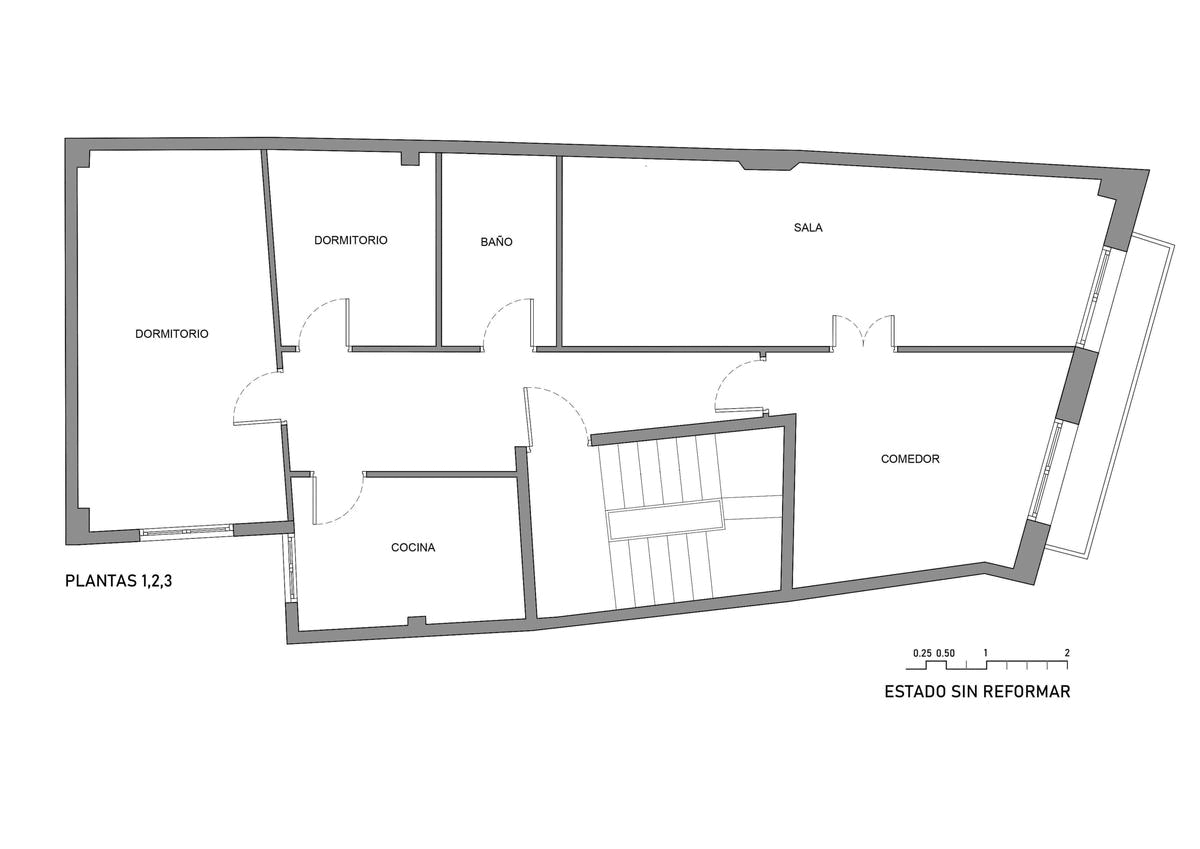
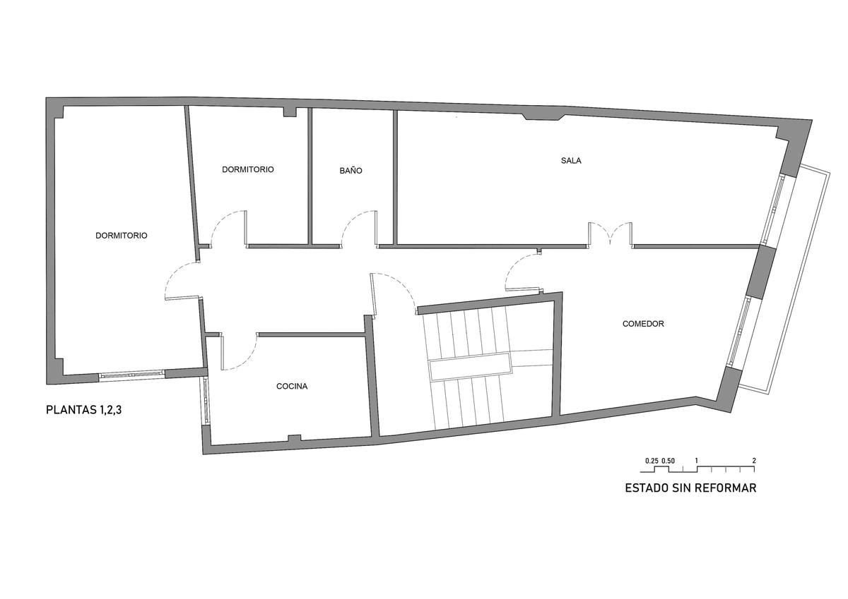
En VAL13, partimos de un edificio de principios de siglo XX, ubicado en una zona en transformación del casco histórico de Reus, que sufría un estado de degradación importante, debido al abandono, fruto a su vez de muchos años de nulo mantenimiento. En contrapartida, las viviendas llegaron a nosotros casi en su situación original, conservando elementos arquitectónicos interesantes.
La intervención integral interviene sobre la estructura de forjados de madera reforzándolos, rehabilita la envolvente del edificio (fachadas, cubiertas), y reconvierte por completo los interiores del edificio para insuflarle dignidad y contemporaneidad a las nuevas viviendas y recuperar la terraza como espacio privativo del piso tercero, convirtiendo la vivienda de la última planta en un oasis en pleno casco histórico de Reus.
La anulación de un enjuto patio de aire y luz ubicado en el medio del edificio, permite una re concepción de la distribución, que anula espacios residuales y gana en aprovechamiento funcional.
Las tres viviendas están organizadas a partir de una única tipología que se repite en cada planta: disponen de un espacio de día con cocina abierta orientadas hacia la calle. Se ajustan las dimensiones de la zona posterior para encajar dos dormitorios y dos baños completos en la zona central y se plantea la posibilidad de una futura división para ganar un tercer dormitorio, si el usuario lo requiere.
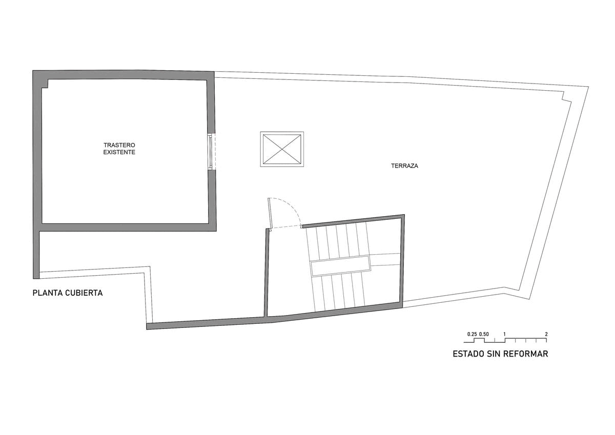
La planta tercera es la estrella de la corona. Aprovechando el antiguo almacén de la terraza, se dota a la vivienda de la última planta de un espacio de estudio-trabajo-reunion, en directa relación con una gran terraza, desde donde se tienen unas magníficas vistas de los tejados del casco histórico.
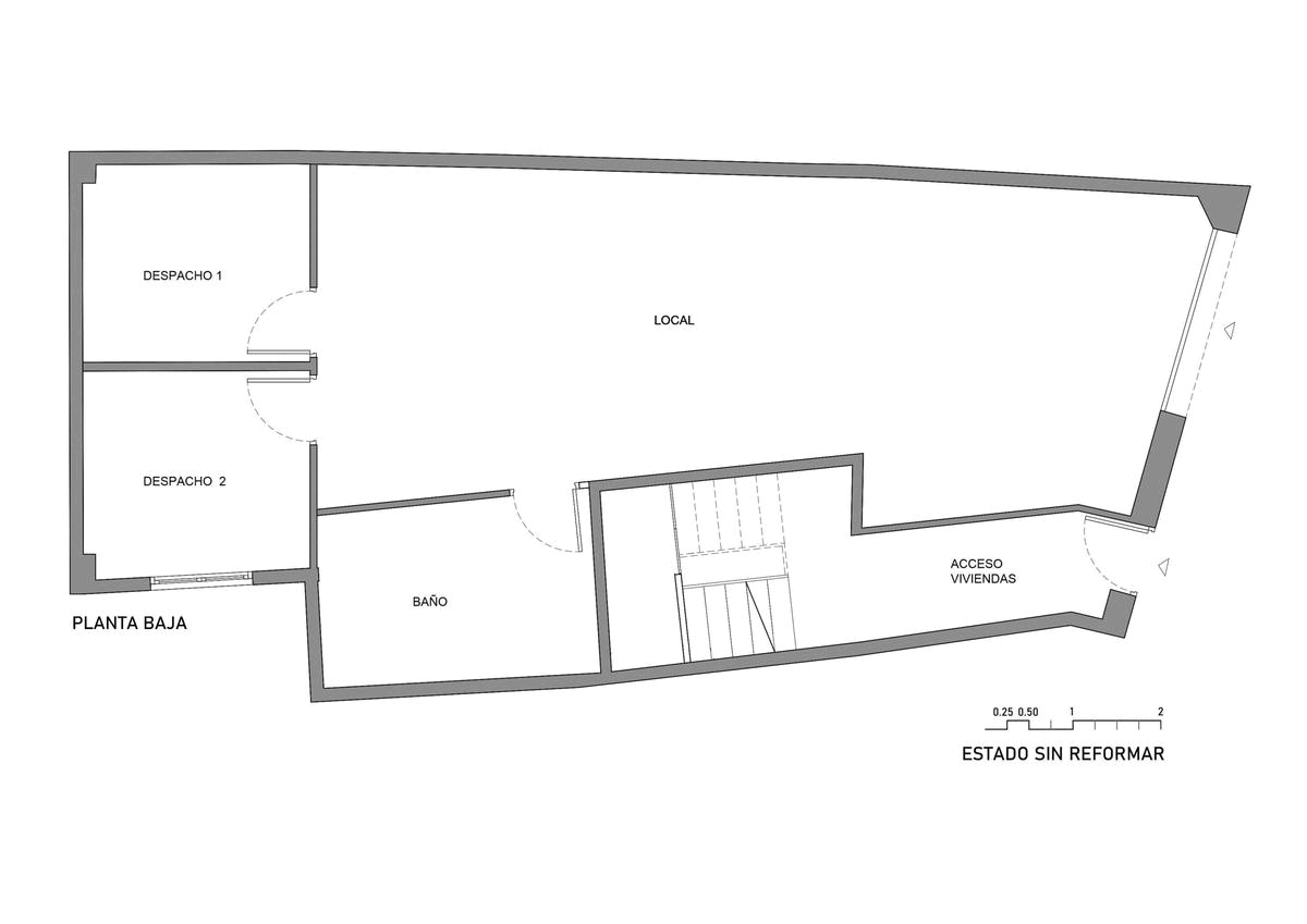
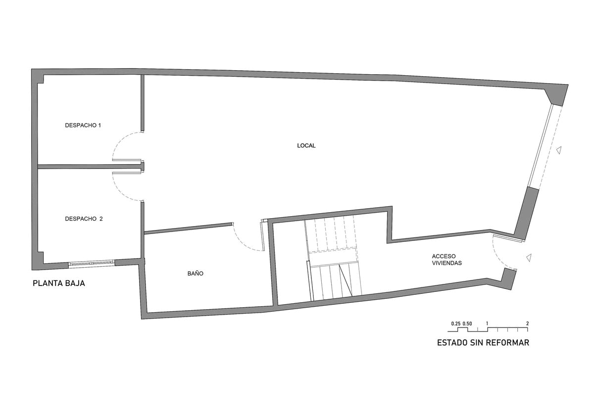
La planta baja recupera su fluidez, encajando las piezas de servicios en el recodo que deja el vestíbulo del edificio. De esta forma, la actividad comercial que se instale podrá disponer de una huella fácil de reorganizar en su distribución.
Las instalaciones se renuevan por completo, innovando en sistemas más eficientes energéticamente, para un nuevo ciclo de vida del edificio que responda a las nuevas necesidades de la sociedad: más seguridad, más calidad, más tranquilidad, más durabilidad y mayor eficiencia.
Se exponen los elementos constructivos originales del edificio en la composición final, combinándolos con materiales contemporáneos que realzan su particularidad. En la selección de materiales se ha escogido una gama de tonos terrosos, que se establece como hilo conductor desde el vestíbulo de acceso hasta la cubierta, unificando los espacios comunes con los más privados.
Rehabilitación, sostenibilidad e innovación indiscutiblemente convergen en el modelo de economía circular. Rehabilitar un edificio es recuperar todas sus posibilidades en la fase final de su primer ciclo de vida y trasladarlas al punto de partida. Renovar sus funcionalidades es ejecutar una obra con respeto al medio ambiente. Aplicar nuevas tecnologías es crear valor desde la investigación.
Rehabilitar para rehabitar es la manera más inteligente y eficaz de recuperar una construcción que, de otro modo, se convertiría en obsoleta.
Ubicación: Reus, Tarragona
Tipología: Residencial – Comercial
Año: 2020
Superficie en su primera fase: Local y plantas piso 65m2; Ático 82m2 + terraza 32m2
Estructura: Windmil Structural Consultants
Instalaciones: Enginyeria CS
Visualización: 3dkuviqa














