
VINNYTSIA
Reconstrucción, ampliación, paisajismo, interiorismo de vivienda unifamiliar aislada.
A finales de 2019 llegó a nuestro despacho un proyecto que suponía un gran reto: repensar una vivienda unifamiliar de 1.500 m2, que aunque construida hacia pocos años, el sistema constructivo, se acercaba a los métodos de principios del siglo XX.
Ubicada al sureste de Ucrania, en los alrededores de Vinnytisa, y rodeada de bosques y ríos, heredamos un contenedor sin acabar, con una configuración y apariencia muy alejado de los cánones occidentales actuales.
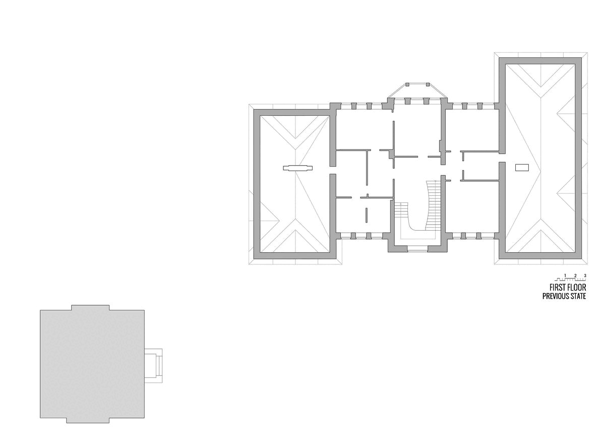
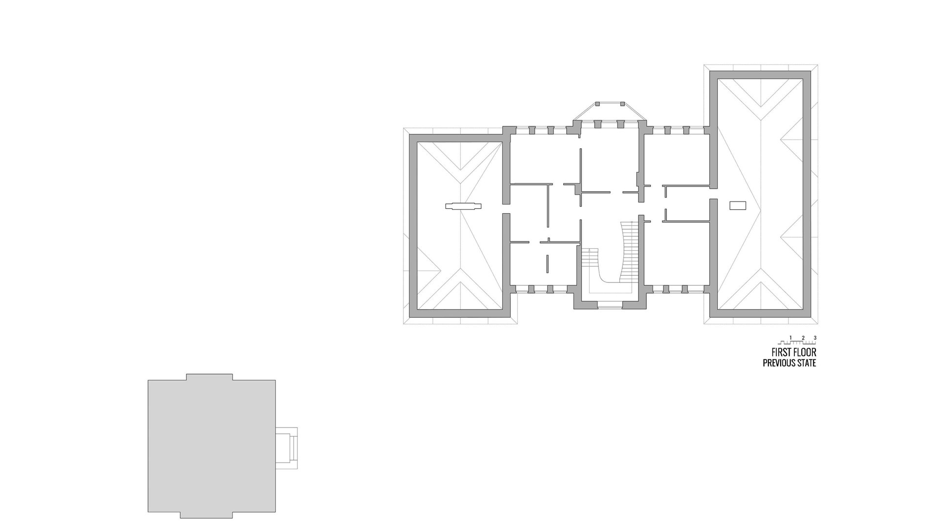
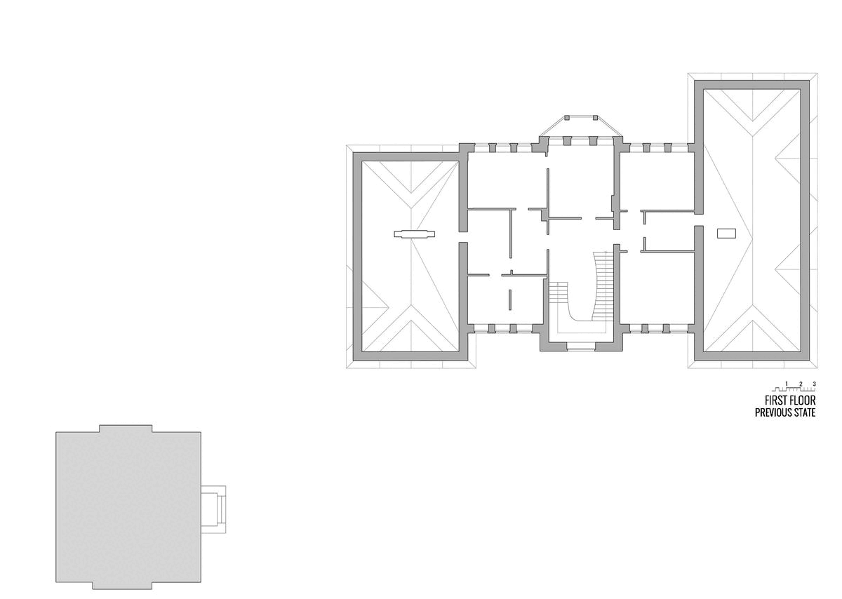
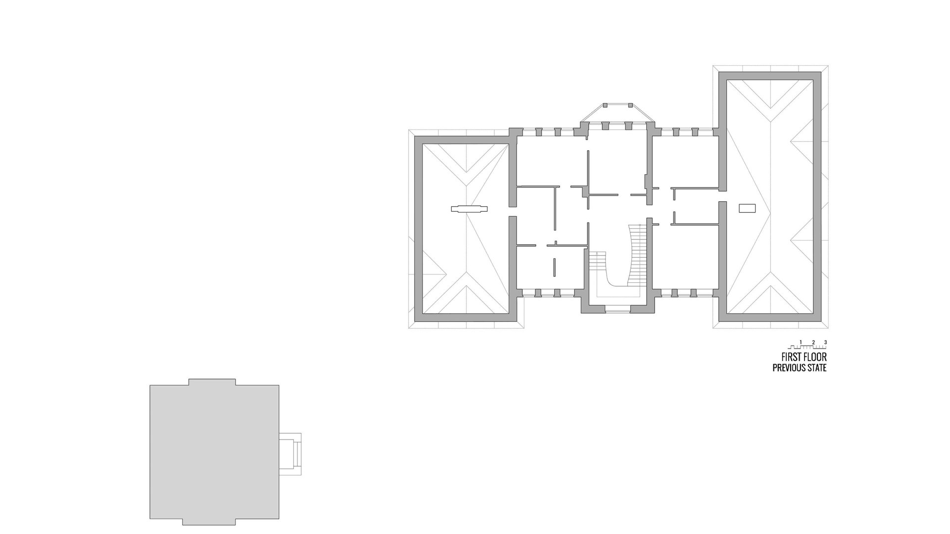
Respetamos la estructura heredada, que se podría resumir en cinco módulos de muros portantes. Los abrimos todos ellos hacia el interior de la parcela y hacia la calle, mejorando la ventilación cruzada y las vistas y desmaterializando su carácter tectónico.
Funcionalmente, la vivienda va ganando en privacidad conforme se suben las escaleras.
En la planta semisótano, se ubican las dependencias de servicio, almacenes, cuartos de instalaciones, sala de juegos, sala de música, sauna, gimnasio, piscina cubierta y bodega.
En la planta baja, se sitúan las cocinas, el comedor, las áreas de reunión y habitación de invitados. Mientras que en la planta primera se encuentran la biblioteca y todos los dormitorios de los miembros de la familia.
Una zona de barbacoa, cine de verano y chill-out, se sitúa casi en medio del jardín, disfrutando de las vistas al río y al paisaje. Evitando las sombras de la construcción principal para alargar los baños en la piscina en la época estival.
La propuesta se completa con un proyecto de paisajismo, que se diseña poniendo foco en un jardín sostenible de bajo mantenimiento, la iluminación y la importancia del efecto nocturno, la ligereza a través de texturas y elementos decorativos, y los materiales naturales
El ataque ruso sucedido a principios de 2022, dejó en stand-by el inicio de la obra.
Mientras tanto, dejamos unas imágenes que definen el proyecto en toda su magnitud, y que al igual que los ciudadanos ucranianos esperan con ansias que un día acabe esta guerra.
Ubicación: Ucrania
Reforma: Proyecto y dirección de obra
Año: 2019-2021
Superficie: 1.885m2 interiores y 9.685m2 exteriores
Paisajismo: Drim
Visualización: 3dkuviqa











