
FLIC
This apartment, of no more than 70 m2, vibrates with the 22@ thanks to its wonderful terrace, with a perfect orientation and its New York views: we almost feel that we could be in Manhattan, instead of Barcelona.
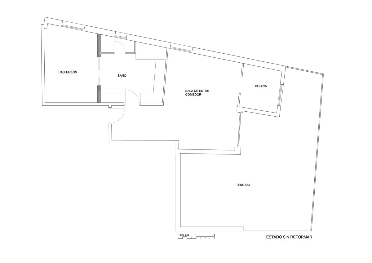
The interior has been completely reorganized to give more space to the day area, reducing the number of sleeping rooms.
The kitchen, without tall furniture, allows the main space to widen, to be flooded with light and to palpitate with the neighborhood, nourishing itself with it, but preserving the quietness.
The outdoor space, as large as the interior, has been renovated and organized to respond to the uses of its inhabitants: from dinners and summer parties to long readings and naps.
An urban refuge, for which the four flights of stairs are well worth the effort.
Location: Barcelona
Typology: complete home renovation
Status: completed (2020)
Area: 70m2 + 50m2 of terrace
Builder: Quintmar
Photography: Valentín Hincû












