
LOOP
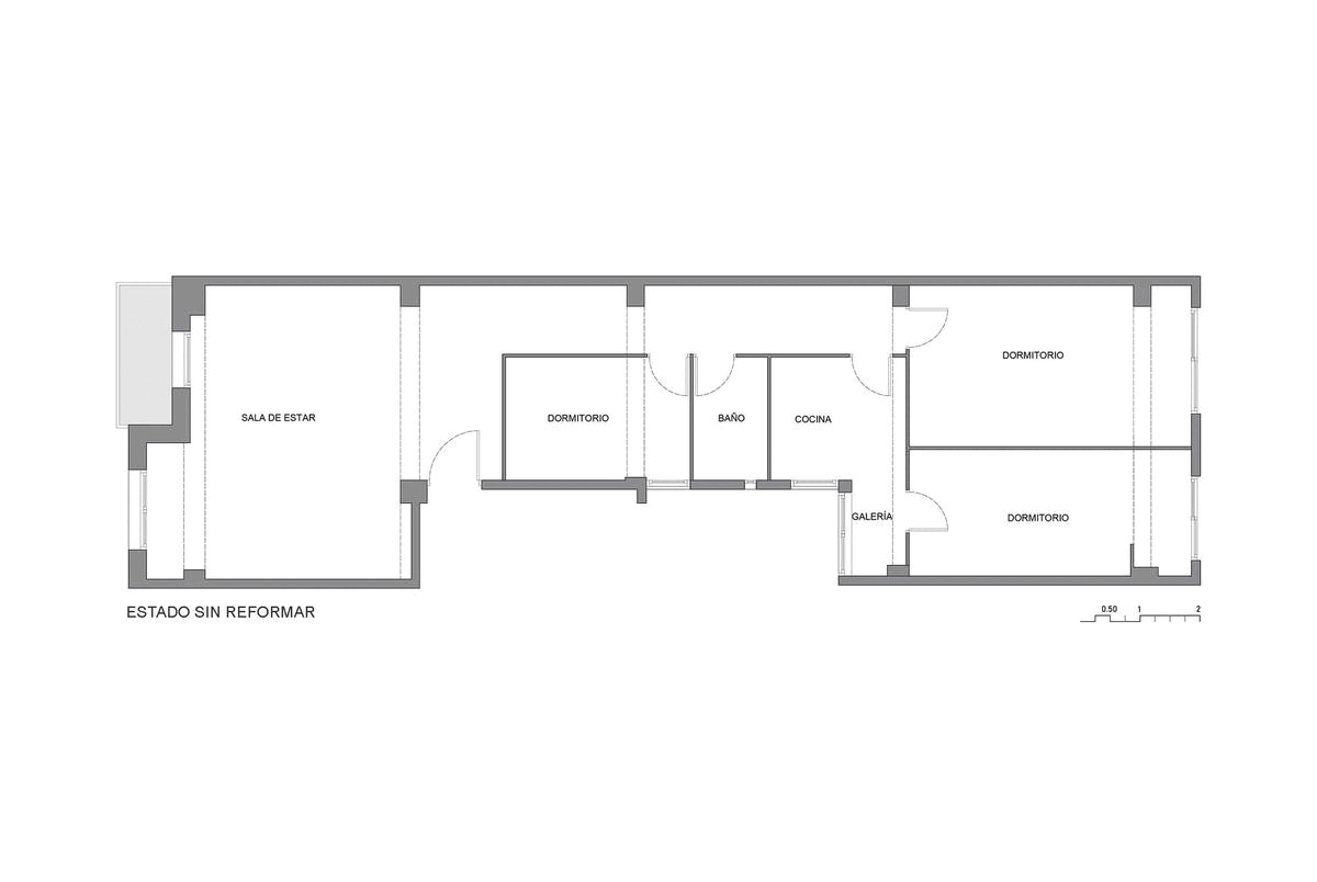
In a Valencian neighborhood that was once a small Arab village, and today has become the hipster epicenter of the city, -although unlike Malasaña or Gràcia, still exudes the aroma of neighborhood- we found a building from the 50’s, where we had to reinvent a standard piece of 80 m2.
It is the typical apartment between party walls, open to the street and to the lung of the block, no more than 7 meters wide and very deep.
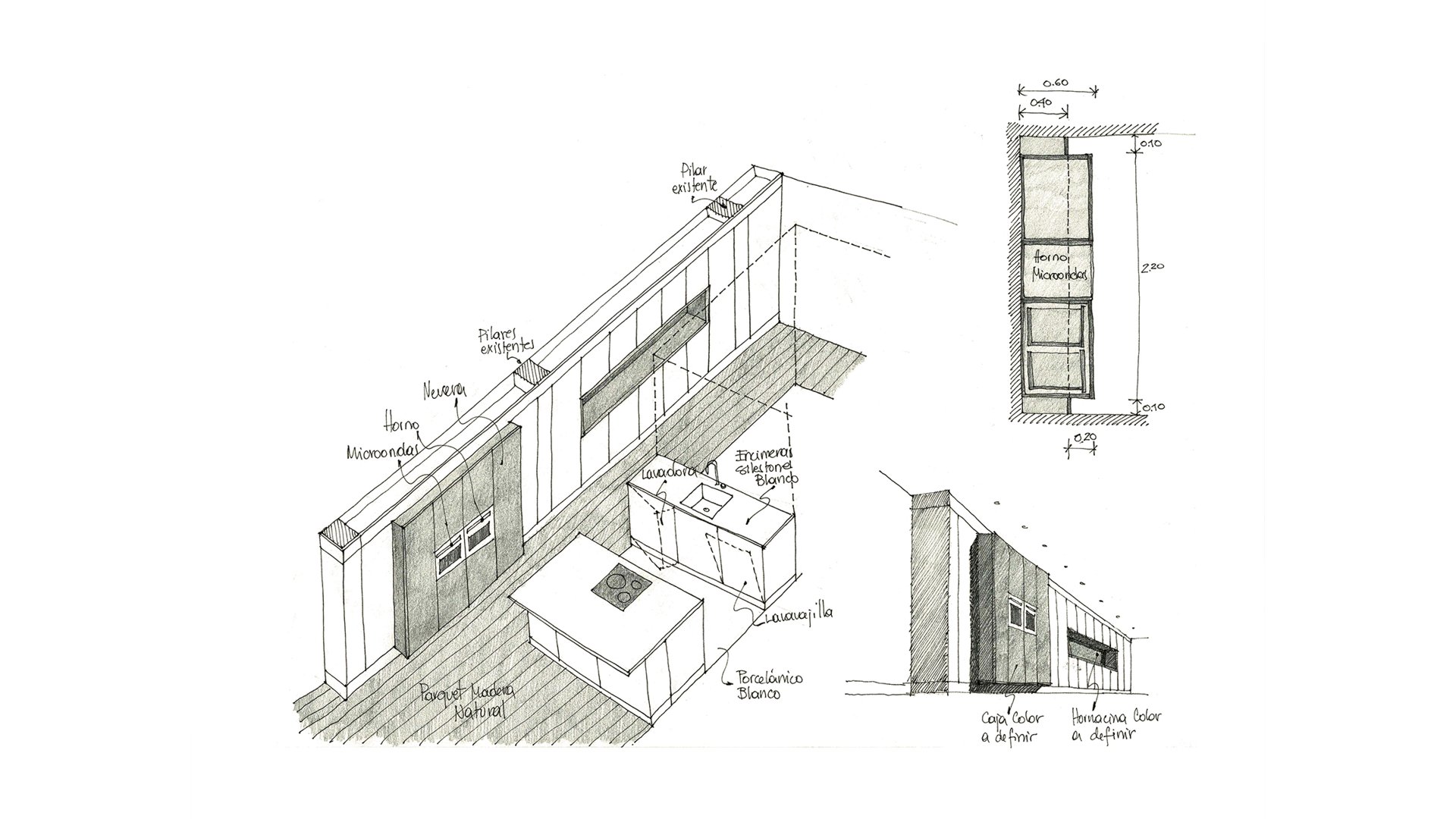
The project was born from the implementation of a multifunctional piece of furniture, which runs almost the entire depth of the apartment and transforms the interior of this apartment into a dynamic space with greater performance. Made up of lacquered wood panels and integrated furniture, its components were manufactured in La Rioja and assembled in-house.
From a design point of view, a continuous plane of white doors (behind which are hidden pillars and structural beams) is interrupted by a mint green protruding box that houses kitchen furniture (fridge, oven, microwave, pantry drawers) and a niche of the same color, which “widens” and “shortens” the corridor.
Its capacity allows to have several storage areas, serving the different environments that accompanies in its path: hall, kitchen, dining room, bathrooms, children’s room.
Functionally, a large day area opens to the bustle of the street, while the two bedrooms are oriented towards the great lung of the block, where the rising sun offers us the possibility of dispensing with the alarm clock.
Location: Valencia
Typology: Complete home renovation.
Year: 2020
Area: 80m2
Photography: Valentín Hincû












