
CASA YAD
Casa YAD is located near Barcelona, but breathes purer air, oxygenated by the Collserola mountain range that separates it from the city.
Contrary to what one imagines about the habits of a family living in a house of 240 m2, the inhabitants of Casa YAD, did not have much “luggage” to store and therein lies the essence of the project: SIMPLICITY and EMPTINESS resolved with a CLEAN SELECTION OF MATERIALS.
The commission for the integral reform of Casa YAD, commissioned by an Asturian-Taiwanese couple, came to us after a deep process of reflection on the part of its owners, who had very well identified their needs and priorities.
Its inhabitants did not seem to demand more from the house than it could give us. With one exception: HEIGHT. The house, built during the 80’s, was only 2.50m high. The owners did not want to go down even one centimeter, and this forced them to design the installations almost like in a game of sudoku.
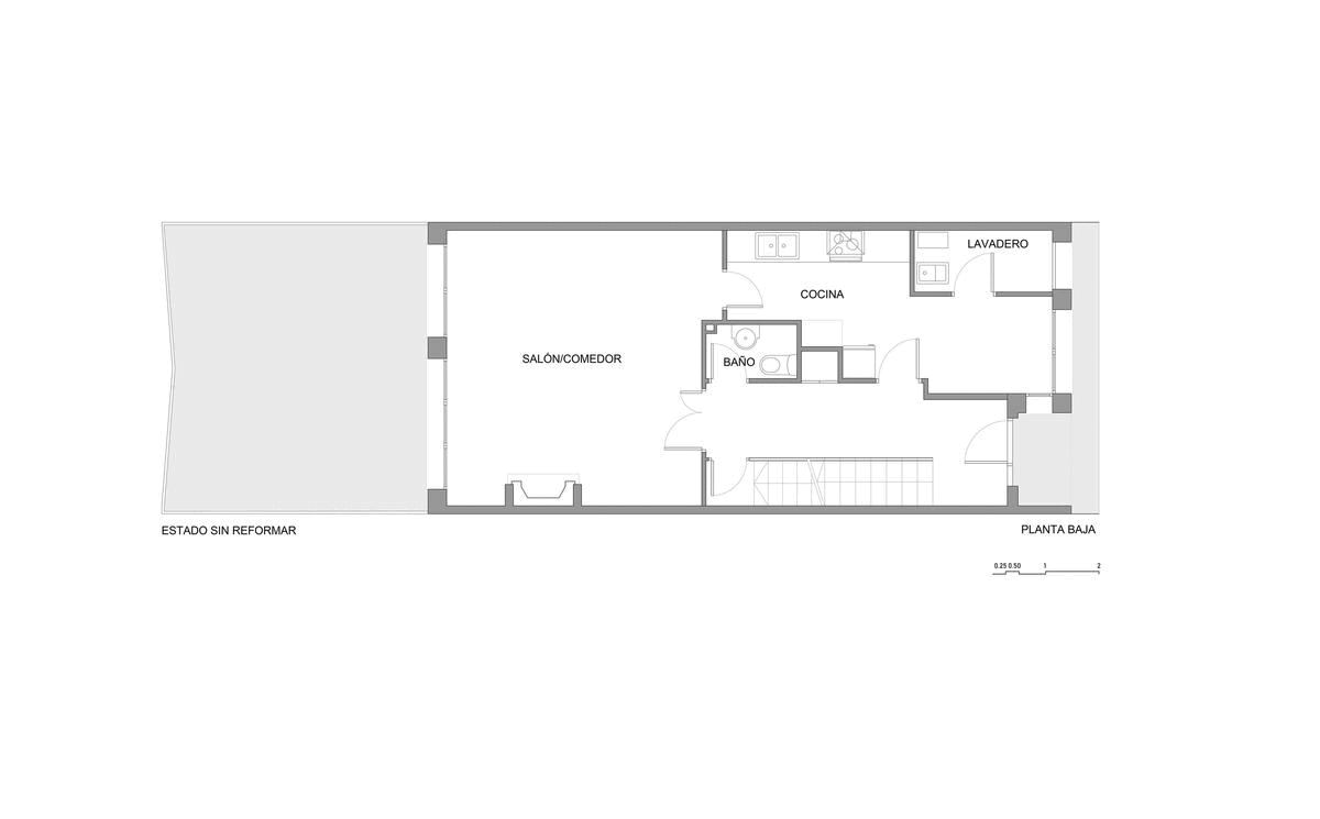
The first floor, all of it opens to the back garden, making its relationship with the exterior closer thanks to a large door window of more than 5 meters wide that goes from party wall to party wall.
The spaces of kitchen, dining room, living room, are a continuum that are differentiated from each other thanks to a selective change of materiality in furniture and flooring.
Respecting axes and symmetries that give harmony to the whole, we were forced to fit the courtesy toilet in a scarce 90 cm2…that even painted all of it in dark gray, does not expel us from its enclosure.
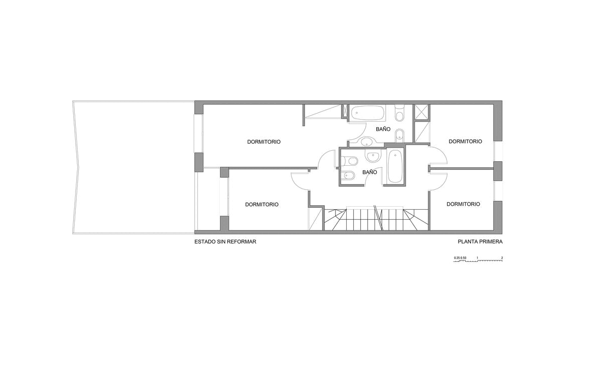
The second floor, renounces one of its old bedrooms, to provide the master bedroom with a generous bathroom.
On the attic floor, we kept the wooden ceiling and a library inherited from the former owners, and changed the flooring to achieve a peaceful and relaxed office.
With a simple language, pure materials and simple lines, casa YAD also has (mostly has) contemplative spaces, despite the hectic pace of its inhabitants.
Location: Sant Cugat del Vallès
Typology: Complete renovation of a semi-detached single-family house, with structural affectation.
Year: 2019
Area: 160 m2
Photography: Valentín Hincû





















