
CORTINES
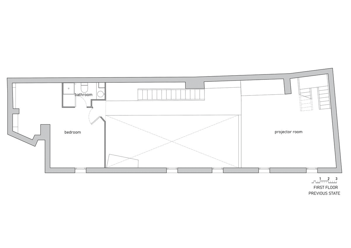
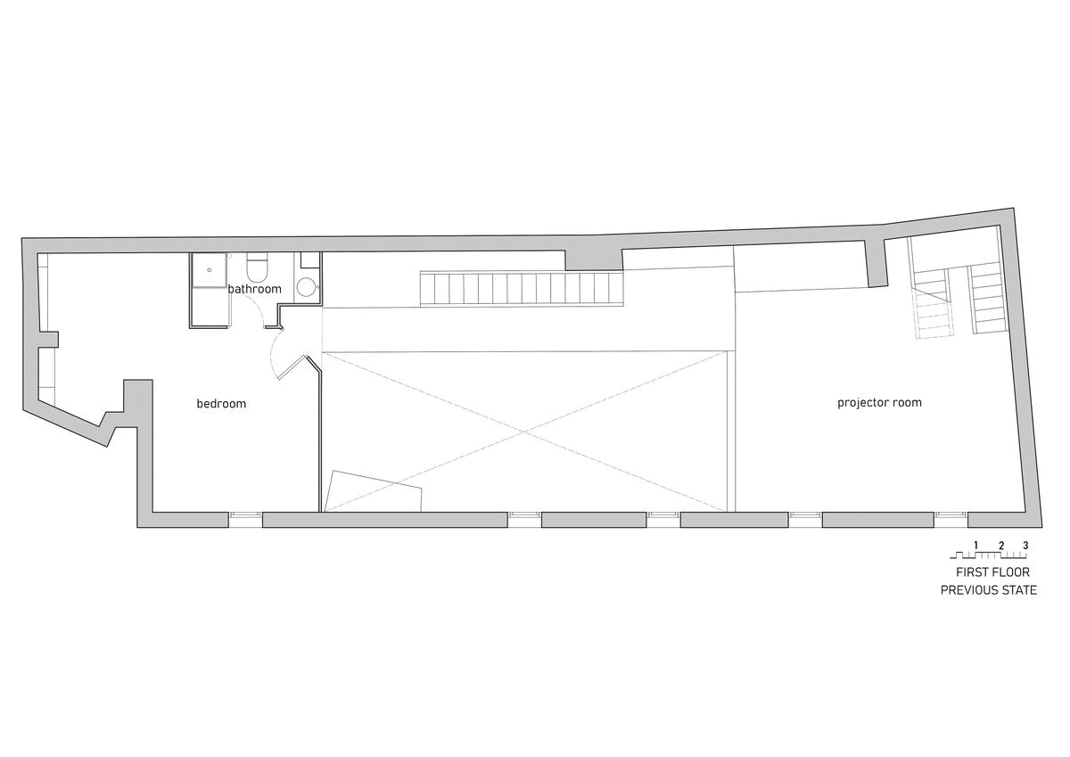
The project arises from the desire and need to improve the privacy of various spaces within a loft. The double-height ceilings and lack of dividing walls make it impossible to carry out simultaneous activities without causing mutual disturbance.
Nevertheless, the intervention was approached with a firm commitment to preserving the spatial character granted by the double height and the exposed roof structure. Consequently, the primary challenge was to avoid compromising the spatial integrity of this expansive container.
This limitation became an opportunity to design a subtle yet effective filter between the upper mezzanine floor and the main floor. The solution involved incorporating two transparent carpentry elements to provide an acoustic barrier. Heavy sliding curtains add a visual filter only when necessary.
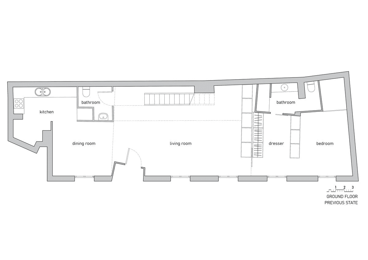
The proposed functional configuration for the ground floor takes a different direction: here, the goal was to integrate the kitchen while expanding the usable area of the dining space. To achieve this, the intervention involved removing the toilet, which had previously blocked the kitchen and relegated it to a dark, tunnel-like space.
The new finishes were chosen to harmonize with the century-old construction system and highlight its value. Natural wood parquet was selected for the flooring on both levels, adding character and warmth, complementing the roof. The remaining materials were deliberately understated: they fulfil their structural purpose without visually or stylistically overwhelming the ensemble.
The lighting fixture chosen for the double-height space completes the spatial design. Black electrical cables form three-dimensional geometries which, despite their size, create a sense of transparency that avoids overloading the space.
Ubicación: Born, Barcelona
Tipología: Residencial
Estado: Completado (2022)
Superficie: 150m2 + 70m2 (terraza)
Fotografía: Pol Viladoms















