
CORTINES
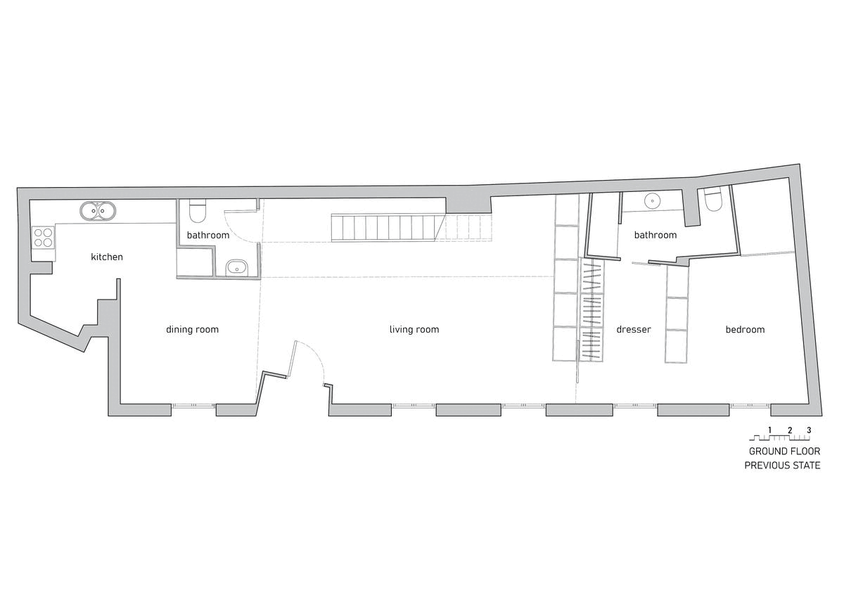
El proyecto surge del deseo y la necesidad de mejorar la privacidad de los distintos espacios, resultantes de convivir todos ellos en un loft donde la doble altura y la inexistencia de tabiques divisorios impiden la simultaneidad de actividades sin molestarse mutuamente.
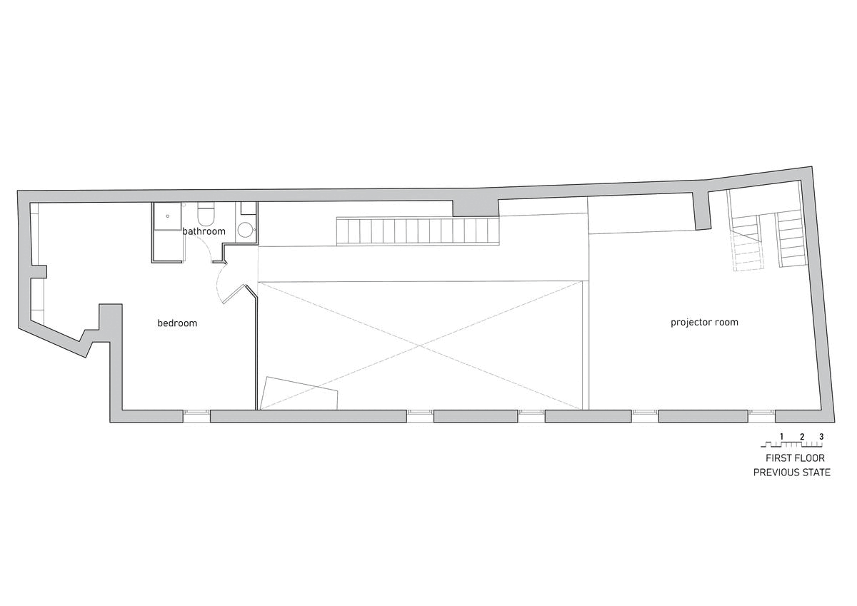
Sin embargo, se acomete con la firma voluntad de mantener el carácter espacial conferido por la doble altura y la impronta de su cubierta vista, y por tanto, el mayor condicionante era no triturar la espacialidad de este gran contender.
Esta limitación se convierte en una oportunidad para formalizar un filtro sutíl y efectivo entre las estancias de planta bohardilla y la planta principal, que se consigue con la incorporación de dos carpinterías trasparentes que aportan el filtro acústico. Gruesos cortinajes correderos, añaden el filtro visual solo cuando es necesario.
El encaje de configuración funcional que se propone en planta baja, va en la dirección contraria: aquí se trataba de integrar la cocina, ampliando a su vez la superficie útil del comedor. Por tanto la intervención consistió en la eliminación del toilette que bloqueaba la cocina, relegándola a un espacio en túnel, oscuro y apartado.
Los nuevos acabados se eligen con la intención de armonizar con el sistema constructivo centenario de la construcción y ponerlo en valor: parquet de madera natural para el pavimento de ambas plantas, que junto con la cubierta aportan carácter y calidez. El resto de los materiales son silenciosos: cumplen su función desde el punto de vista constructivo, pero no contaminan visual ni estilísticamente el conjunto.
La elección de la luminaria escogida para el espacio en doble altura, completa el conjunto espacial: Cables eléctricos negros dibujan geometrías en tres dimensiones que, a pesar de su gran tamaño, crean un efecto de transparencia que no cargan el espacio.
Ubicación: Born, Barcelona
Tipología: Residencial
Estado: Completado (2022)
Superficie: 150m2 + 70m2 (terraza)
Fotografía: Pol Viladoms















