
LETAMENDI
Sophistication and Design
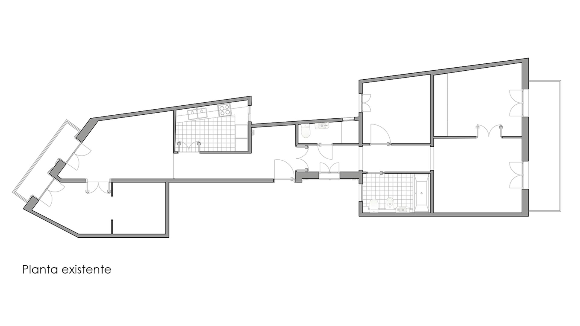
Located on one of the most prestigious streets of l’Eixample Esquerra, this project, situated on the first floor of a historic building, came to us already with its functional layout and material configuration decided. Our clients, design enthusiasts, spared no effort or time in carefully selecting every material for the home with precision and style.
The building’s load-bearing wall structure significantly influenced the design decisions. This was especially true because the apartment is located on the first floor, with eight stories above it, making it impossible to demolish any load-bearing walls or provide structural support.
However, since the original layout was inadequate—mixing day and night areas—the clients chose to focus the day area on the gallery that opens up to the inner courtyard. The gallery’s perpendicular structure to the street provided an open space nine meters wide. As a result, the kitchen and living room extend onto a spacious terrace, receiving the full light of the morning and the serene tranquility of the inner courtyard, typical of the Eixample.
Separated by two load-bearing walls, which were opened as far as constructively possible, are the dining room and a work-study area that doubles as a guest bedroom. A large custom sliding door separates the study/bedroom when closed and creates a unified space with the kitchen-living room when opened.
Facing Letamendi Square is the owners’ night area: a master bedroom configured as a suite, with a generous walk-in closet and a reading area. The suite is completed by a bathroom that leaves nothing to be desired.
At the center lies the distributor hall: an elongated space, complemented by a built-in piece of furniture that conceals services and utilities, along with a convenient guest bathroom.
Materiality and Style
One of the project’s successes was highlighting the home’s original heritage by restoring and recovering the wooden joinery and accentuating its aged character.
The materials chosen are of noble nature: wood for the floors, interior doors, exterior windows, and custom-designed furniture; Italian marbles for the sinks, polished cement and mosaic tiles for the floor of the distributor hall, and neutral hydraulic tiles for the kitchen and gallery.
Regarding style, the owners’ desire was to create the soul of an English club, combined with the warmth of Italian design.
Colors and Finishes
The color palette is minimalist: only white, gray, and wood were used to compose a masculine and stylish apartment that speaks for itself. The balance between style and functionality creates an inviting space that appeals to all.
Ubicación: Eixample, Barcelona
Tipología: Residencial
Año: 2016
Reforma: Reforma integral de vivienda sin afectación estructural
Superficie: 110m2
Fotografía: Bluetomatophotos













