
LETAMENDI
Sofisticación y diseño
Ubicado en una de las calles más prestigiosas de l’Eixample Esquerra, este proyecto situado en la primera planta de un edificio histórico llegó a nuestras manos ya decidido en su configuración funcional y material. Nuestros clientes, unos enamorados del diseño, no escatimaron esfuerzos ni tiempo en elegir con precisión y estilo cada uno de los materiales de la casa.
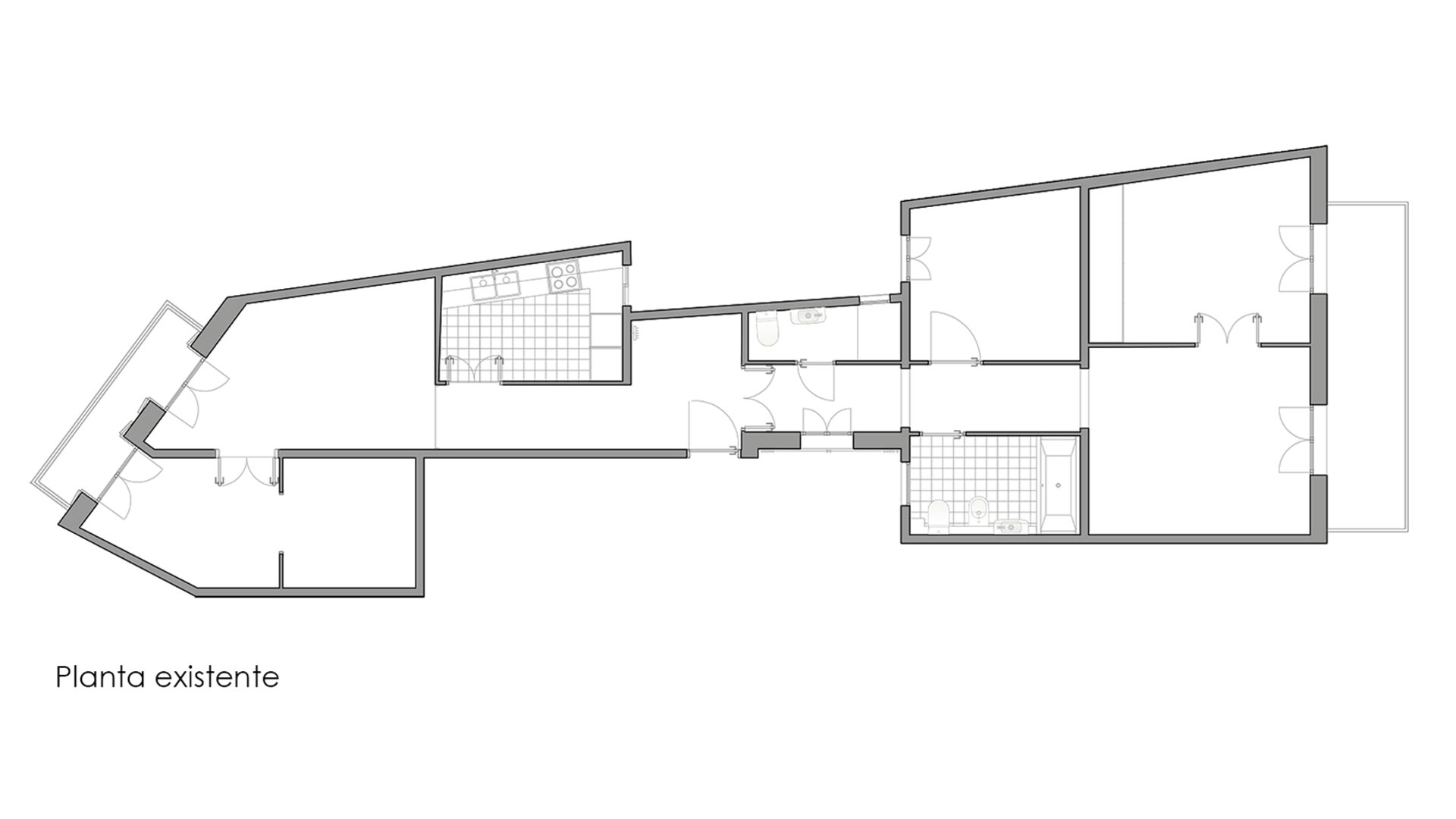
La estructura de muros portantes, condicionó bastante las decisiones de distribución. Sobre todo porque el piso en cuestión se situa en una primera planta, con 8 plantas por encima, lo que hacía inviable derribar muros portantes y hacer apeo alguno.
No obstante, como en origen las estancias estaban distribuidas de forma inadecuada, mezclando zonas de día y noche, eligieron centrar la zona de día hacia la galería que se abre al pulmón de manzana; cuya estructura armada en perpendicular a la calle, ofrecía un espacio diáfano de 9metros de anchura. Así la cocina salón que se extiende en una amplia terraza recibe toda la luz de la mañana, y la apacible calma del pulmón de manzana típica del Eixample.
Separado por dos muros portantes, abiertos hasta el límite de las posibilidades constructivas, se encuentran un comedor y un estudio de trabajo que se convierte en dormitorio para los invitados. Una gran puerta corredera fabricada a medida separa el estudio/dormitorio cuando está cerrada y fluye configurando un todo con la cocina-salón cuando se deja abierta.
Hacia la plaza Letamendi, se sitúa la zona de noche de los propietarios: un dormitorio principal configurado en suite con una habitación entera donde se arma un generoso vestidor con zona de lectura. Un baño al que no le falta nada completa la suite.
En el centro, el hall distribuidor: alargado, acompañado de un mueble camuflado que esconde servicios e instalaciones y un cómodo baño de invitados.
En cuanto a la materialidad, unos de los éxitos del proyecto fue poner en valor la herencia original de la casa, restaurando y recuperando las carpinterías de madera y resaltando su añejidad.
Los materiales utilizados son de naturaleza noble: madera para el suelo, las puertas interiores, las ventanas exteriores, y el mobiliario diseñado a medida; mármoles italianos para los lavabos, cemento alisado y gresite para el suelo del hall distribuidor, baldosas hidráulicas neutras para la cocina y la galería.
En cuanto a estilo, se ha buscado por deseo de sus dueños, el alma de un club inglés mezclado con la calidez del diseño italiano.
Respecto de los colores: Solo blanco, gris y madera para componer un piso masculino y estiloso, del que no hace falta decir mucho más, porque las imágenes hablan por si mismas. Se consigue un equilibrio entre estilo y funcionalidad apetecible para todo el mundo.
Ubicación: Eixample, Barcelona
Tipología: Residencial
Año: 2016
Reforma: Reforma integral de vivienda sin afectación estructural
Superficie: 110m2
Fotografía: Bluetomatophotos













