
DOCTOR TRUETA
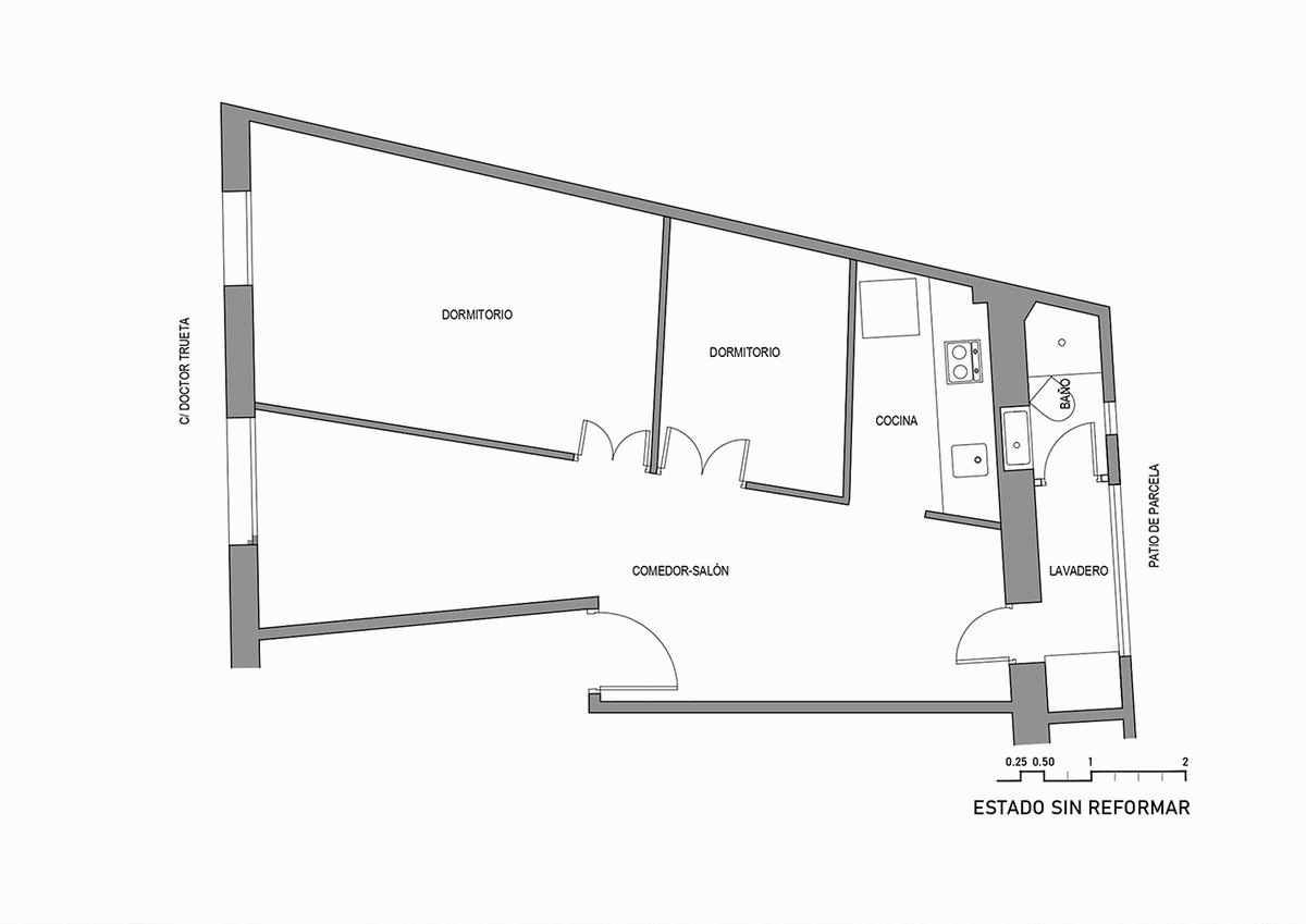
En DOCTOR TRUETA nos encontramos con un piso de principios de siglo XX con una configuración muy deficiente: El salón no tenía más de dos metros de ancho, lo que confinaba a sus moradores a un espacio un tanto claustrofóbico donde desarrollar la vida “social”.
Cocina y baño, rozaban el límite de lo habitable, por sus espacios reducidos y equipamientos inexistentes.
Instalaciones eléctricas improvisadas, producían una alta contaminación electromagnética, mientras que carpinterías poco eficientes hacían que toda la inercia térmica de los muros se desperdiciara por los vanos.
La reconfiguración espacial obligó a un refuerzo estructural que nos permitiera derribar los tabiques divisorios sin riesgos de movimientos en plantas superiores por tumbar tabiques que después de tanto tiempo se habían solidarizado con la función estructural, adquiriendo carga.
La estrategia del proyecto consistió en conseguir un espacio diáfano en la mitad del piso orientado a la fachada, demoliendo la tabiquería y consiguiendo que la estancia “social” ocupara todo el ancho, mirando hacia la calle y orientado al sur.
En la mitad trasera, ubicamos dormitorio y cocina. Ambos ventilan a través de la galería de la fachada posterior, reconfigurada y convertida en baño y lavadero, resueltos en tres espacios independientes.
Debajo de muchas capas de pintura y revoque, se escondían unos muros de piedra dignos de mostrar. Encima de falsos techos de escayola, los forjados de vigas de madera y entrevigado plano de ladrillo, también pedían salir a la luz.
Dejándolos al descubierto, estos materiales expresan la edad y la historia de la casa, del edificio y de las construcciones típicas de este barrio industrial. Está pátina del desgate, añade al espacio la experiencia del tiempo. Y el diseño de la iluminación ambiental, enfatiza su belleza.
El resto de materiales elegidos, son silenciosos, mínimos, para dialogar con la belleza esencial de las preexistencias, en un acto de gratitud y acompañamiento.
Ubicación: Poble Nou, Barcelona
Tipología: Residencial
Año: 2022
Reforma: Proyecto, dirección y gestión de obra
Superficie: 50m2
Fotografía: Valentín Hincû













